Zwangsversteigerung prov.-frei: Einfamilienhaus in Wietze
29323 Wietze, Einfamilienhaus zum Kauf




Kontaktdaten
-
NameFrau Petra Jansing
-
PositionImmobilienmaklerin
-
FirmaHannoversche Volksbank Immobilien GmbH
-
AnschriftHafenstraße 8a
29223 Celle -
E-Mail
-
E-Mail
-
Telefon
-
Fax05141 2190989
Versteigerung, neu
Objektdaten
-
Objekt ID65-8988 ZV
-
ObjekttypenEinfamilienhaus, Haus
-
Adresse29323 Wietze
Niedersachsen -
Etagen im Haus1
-
Wohnfläche ca.96 m²
-
Grundstück ca.900 m²
-
Zimmer4
-
Schlafzimmer3
-
Badezimmer0,0
-
Erschließungvollerschlossen
-
BauweiseMassiv
-
Stellplätze gesamt1
-
Käuferprovisionprov.frei
-
Kaufpreis pro m²1.822,92 EUR
-
Verkehrswert:175.000 EUR
-
Versteigerungstermin30.01.2026
- ✓ Altbau
- ✓ Carport
- ✓ Fliesenboden
- ✓ Garten/Gartennutzung
- ✓ Kein Keller
- ✓ Laminatboden
- ✓ Massivbauweise
- ✓ Satteldach
- ✓ Teppichboden
-
Energieausweisnicht erforderlich
Ein Energiepass ist nicht erforderlich - Grund: Erwerb im Rahmen einer Zwangsversteigerung gem. § 80 (3) GEG
Ausstattung / Merkmale
Energieausweis
Objektbeschreibung
Kurzbeschreibung
Einfamilienhaus mit Anbau auf großzügigem Grundstück am Feldrand
Beschreibung
Ein freihändiger Verkauf außerhalb der Zwangsversteigerung und auch Besichtigungstermine sind leider NICHT möglich. Ein Energieausweis liegt nicht vor und ist aufgrund der Zwangsversteigerung nicht erforderlich.
Nähere Informationen erhalten Sie auf Anfrage.
Ausstattung
Alle Daten und Angaben in diesem Exposé wurden uns von Dritten übermittelt bzw. dem Verkehrswertgutachten des Gerichts entnommen. Es erfolgte keine Prüfung, daher übernehmen wir keinerlei Haftung.
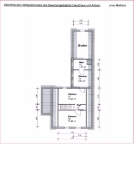
Dieses ca. 96 m² große Einfamilienhaus mit Anbau wurde in massiver Bauweise errichtet, das Baujahr ist nicht bekannt und wurde auf 1955 geschätzt. Das Gebäude ist nicht unterkellert. Im Haupthaus sind sowohl das Erdgeschoss als auch das Dachgeschoss ausgebaut. Der Anbau ist eingeschossig ausgeführt. Insgesamt besteht ein Instandhaltungs- und Modernisierungsbedarf.
Sonstiges
Sie denken über den Verkauf Ihrer Immobilie nach? Mit unserem starken Netzwerk begleiten wir Sie zuverlässig zum Erfolg.
Rufen Sie uns gerne unter Telefon 0511–70077–0 an oder informieren Sie uns per Mail unter info@hanvbimmo.de.
.
Lage
Die Gemeinde Wietze, mit über 8000 Einwohnern, liegt etwa 20 km westlich von Celle. Eine Infrastruktur, die den Anforderungen an ein modernes Leben gerecht wird, ist durch zahlreiche Einkaufsmöglichkeiten, Restaurants, einer Grundschule sowie einem Kindergarten sichergestellt.
Das hier angebotene Einfamilienhaus befindet sich in einem ruhigen Wohngebiet in Wietze. Die Bushaltestellen "Wietze Wieckenberger Weg 2" ist ca. 350 m vom Objekt entfernt gelegen, wodurch eine gute Anbindung an den ÖPNV gegeben ist. Durch die unmittelbare Nähe zur B214 ist auch die Anbindung mit dem PKW als gut einzuordnen.
Sie sehen gerade einen Platzhalterinhalt von Google Maps. Um auf den eigentlichen Inhalt zuzugreifen, klicken Sie auf die Schaltfläche unten. Bitte beachten Sie, dass dabei Daten an Drittanbieter weitergegeben werden.
Mehr InformationenDie dargestellte Position der Immobilie ist nur eine ungefähre Angabe.
Sie sehen gerade einen Platzhalterinhalt von Vimeo. Um auf den eigentlichen Inhalt zuzugreifen, klicken Sie auf die Schaltfläche unten. Bitte beachten Sie, dass dabei Daten an Drittanbieter weitergegeben werden.
Mehr InformationenSie sehen gerade einen Platzhalterinhalt von YouTube. Um auf den eigentlichen Inhalt zuzugreifen, klicken Sie auf die Schaltfläche unten. Bitte beachten Sie, dass dabei Daten an Drittanbieter weitergegeben werden.
Mehr InformationenSie müssen den Inhalt von reCAPTCHA laden, um das Formular abzuschicken. Bitte beachten Sie, dass dabei Daten mit Drittanbietern ausgetauscht werden.
Mehr InformationenSie sehen gerade einen Platzhalterinhalt von Facebook. Um auf den eigentlichen Inhalt zuzugreifen, klicken Sie auf die Schaltfläche unten. Bitte beachten Sie, dass dabei Daten an Drittanbieter weitergegeben werden.
Mehr InformationenSie sehen gerade einen Platzhalterinhalt von Instagram. Um auf den eigentlichen Inhalt zuzugreifen, klicken Sie auf die Schaltfläche unten. Bitte beachten Sie, dass dabei Daten an Drittanbieter weitergegeben werden.
Mehr InformationenSie sehen gerade einen Platzhalterinhalt von Google Maps. Um auf den eigentlichen Inhalt zuzugreifen, klicken Sie auf die Schaltfläche unten. Bitte beachten Sie, dass dabei Daten an Drittanbieter weitergegeben werden.
Mehr InformationenSie sehen gerade einen Platzhalterinhalt von Vimeo. Um auf den eigentlichen Inhalt zuzugreifen, klicken Sie auf die Schaltfläche unten. Bitte beachten Sie, dass dabei Daten an Drittanbieter weitergegeben werden.
Mehr InformationenSie sehen gerade einen Platzhalterinhalt von YouTube. Um auf den eigentlichen Inhalt zuzugreifen, klicken Sie auf die Schaltfläche unten. Bitte beachten Sie, dass dabei Daten an Drittanbieter weitergegeben werden.
Mehr InformationenSie sehen gerade einen Platzhalterinhalt von Instagram. Um auf den eigentlichen Inhalt zuzugreifen, klicken Sie auf die Schaltfläche unten. Bitte beachten Sie, dass dabei Daten an Drittanbieter weitergegeben werden.
Mehr InformationenSie sehen gerade einen Platzhalterinhalt von X. Um auf den eigentlichen Inhalt zuzugreifen, klicken Sie auf die Schaltfläche unten. Bitte beachten Sie, dass dabei Daten an Drittanbieter weitergegeben werden.
Mehr Informationen